top scroll helper
Note: Our products and services are intended exclusively for the B2B sector.

ME20A/14 Air vane motor

ME20A/14 Air vane motor

Applications This air motor with vane drive is intended for installation in machines, e.g. as drive units on conveyor belts, in machine tools, feed or entrainment devices, in the food or packaging industry, on production lines or for installation in hand-guided special machines.

Compressed air vane motor ME20A/14 - power unit for professionals

Power: 200 W
Free Speed: 140 min-1
Chuck: shaft-hub-connection
The 0.2 kW air motor can be operated oilfree.
The air vane motor has low-noise and low-vibration values, starts precisely and it runs in right drive.
They are equipped with a shaft-hub connection according to DIN 6885 form A.
The durable air vane motors are low-maintenance, and wear parts can be changed fast and easily.
On request specific types are available: ceramic, stainless steel or motors with ATEX-certification; for high requirements to atmosphere, hygiene or safety.

Special features of low speed motors:
These motors are first choice for industrial applications, e.g. as agitator, unit drive, for position components, for several moves. The most important technical feature is the low speed value and not the torque at max. power. Don’t use them depending on torque, when the motor stalls, it may cause damage to gear parts inside the motor. Adjust the torque on max. 4 – 5 Nm.
Technical specifications
Power [kW]: 0.20 kW
Free speed: 140 min-1
Torque at max. Power: 4 - 5 Nm
Direction of rotation: Right
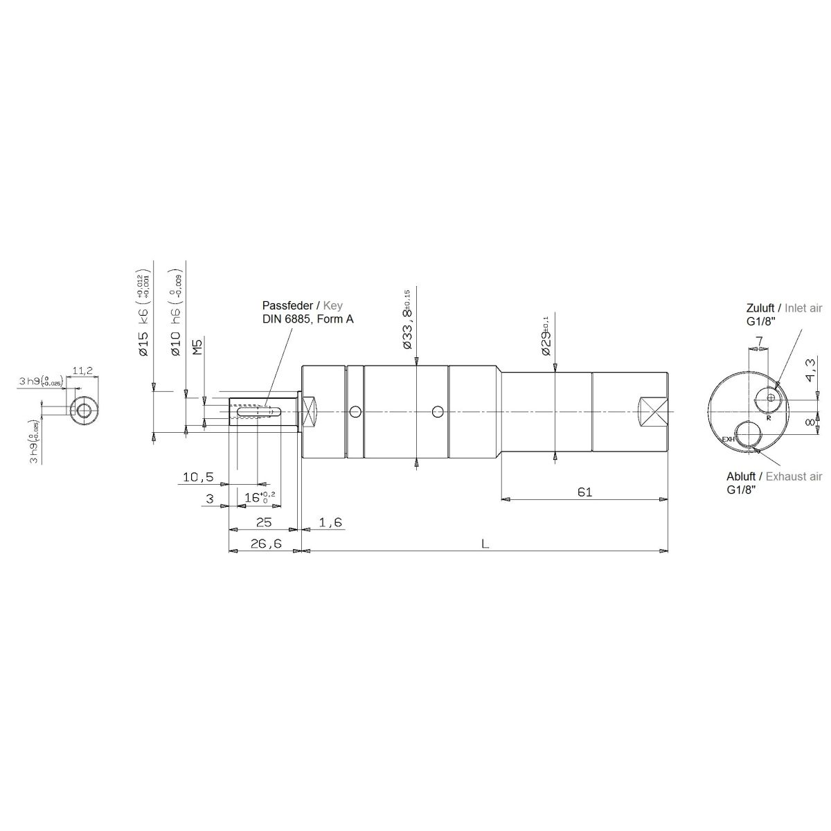
Chuck: Shaft-hub-connection Ø 10 h6
Construction form: Straight
Weight: 0.70 kg
Length: 192 mm
Housing Ø: 33.8 / 29 mm
Shaft length: 25 mm
Recommended hose Ø: 6 mm
Air consumption: 5.3 l/s
Current: Pneumatic
Working pressure: 6.3 bar
Max. Working pressure: 7.0 bar
Information: The figures shown are measured at a pressure of 6.3 bar (ISO 2787), the recommended working pressure.
Inlet air connection: G 1/8"
Exhaust air connection: G 1/8"
Included in delivery:

Motor

Options
Skip product gallery

Similar Articles

Air vane motor
ME20A/5 Air vane motor

€9,999.00*
Air vane motor
ME20A/8 Air vane motor

€9,999.00*
Air vane motor
ME20A/35 Air vane motor

€9,999.00*
Air vane motor
ME20A/60 Air vane motor

€9,999.00*
Air vane motor
ME20A/105 Air vane motor

€9,999.00*
Air vane motor
ME20A/260 Air vane motor

€9,999.00*
Air vane motor
ME20A/430 Air vane motor

€9,999.00*
Air vane motor
ME20A/2000 Air vane motor

€9,999.00*
Air vane motor
ME20A/14-SP Air vane motor

€9,999.00*
Air vane motor
ME16A/13U Air vane motor

€9,999.00*
Skip product gallery

Extras

Clamping Flange
001009/1 Clamping Flange

€9,999.00*
Maintenance unit, three-part

€9,999.00*
Maintenance unit, three-part

€9,999.00*
Compressed air oil
Öl-1L Compressed air oil
Type: Öl-1L

€0.00*
Gear grease
HOCLA 2007 Gear grease

€9,999.00*
Grease gun
FPR1 Grease gun

€9,999.00*